M07 - La maison des hirondelles - SEMERIES (59)

Rénovation-extension d’une ferme et de son étable
4 rue de Ramousies - 59440 Sémeries

  • MOA

    Particulier

  • MOE

    HPAA - Architecte mandataire

  • Programme

    Rénovation - 350.17 m²SHAB
    Extension - 15.13 m²SHAB

  • Enveloppe

    450000 €TTC

  • Phase

    Tranche 1 - Livré en 2023
    Tranche 2 - DET - Site occupé
    Tranche 3 - 2026

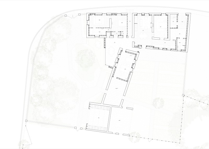
En face de la Mare aux Canards, institution séculaire du village, la maison des hirondelles est une spacieuse maison de famille dégradée par plusieurs années d’abandon, issue de la recomposition d’une ferme, d’un gîte et d’une étable. Le projet de réhabilitation et de rénovation énergétique s’effectue en site occupé et est phasé en plusieurs tranches.

D’abord, le gîte et les pièces de vie de l’habitation : le plancher solivé et les murs maîtres dégradés sont déconstruits et assainis. Un nouveau gîtage avec muralières en feuillure, isolé dans toute son épaisseur permet de fermer le gîte et de proposer une enveloppe bien isolée et saine pour deux chambres et la salle de bain rénovée. La rénovation des pièces de vie et les travaux d’aménagement du terrain se poursuivent à l’avancement.

Une extension contemporaine en ossature bois et zinc naturel, largement ouverte sur le jardin, vient se glisser entre la ferme, le gîte et l’étable, laquelle devient l’atelier d’architecture. L’extension, non chauffée, et bénéficiant d’une exposition privilégiée, sert d’espace tampon, de desserte et de détente estivale.

Dialogues et contrastes

Les cultures constructives contemporaines ont peut-être bien plus changé que les matériaux de construction eux-mêmes. La mise en œuvre d’une maçonnerie ancienne, de moulures de plâtre ou d’assemblages charpentés séculaires sont ce qui confère leur noblesse aux bâtisses anciennes, ce qui rend délicate leur rénovation et leur composition dans un ensemble contemporain. Le projet signifie et mobilise ce contraste, entretenant l’ambiguïté entre l’extérieur et l’intérieur. Le lexique formel et colorimétrique est sobre et efficace, réemploie occasionnellement des matériaux déconstruits mais distingue nettement ce qui relève de l’ancien du geste contemporain.

Stratégie énergétique

Pour une consommation énergétique raisonnée, chaque enveloppe fonctionnelle est énergétiquement dissociée : les chambres (situées dans l’ancien gîte), l’atelier, les pièces de vie, les chambres des invités sont toutes isolées et ventilées séparément afin de pouvoir piloter efficacement la consommation.

  • MOA

    Particulier

  • MOE

    HPAA - Architecte mandataire

  • Programme

    Rénovation - 350.17 m²SHAB
    Extension - 15.13 m²SHAB

  • Enveloppe

    450000 €TTC

  • Phase

    Tranche 1 - Livré en 2023
    Tranche 2 - DET - Site occupé
    Tranche 3 - 2026