L03 - Les vieux murs, rue de Beaumont - SOLRE-LE-CHÂTEAU (59)

Rénovation énergétique de logements collectifs en site occupé
9 et 45 rue de Beaumont - 59740 Solre-le-Château

  • MOA

    Partenord Habitat

  • MOE

    HPAA - Architecte mandataire
    Arvalhome - BE CVC-Fluides
    BATECA Ingénierie - BE STR
    Atlas Energies - BE THE-ENV

  • Programme

    Rénovation énergétique
    10 logements - 1T1 - 4T2 - 4T3 - 1T4
    531.45 m²SHAB

  • Enveloppe

    852000 €HT

  • Phase

    PRO-DCE - 2026

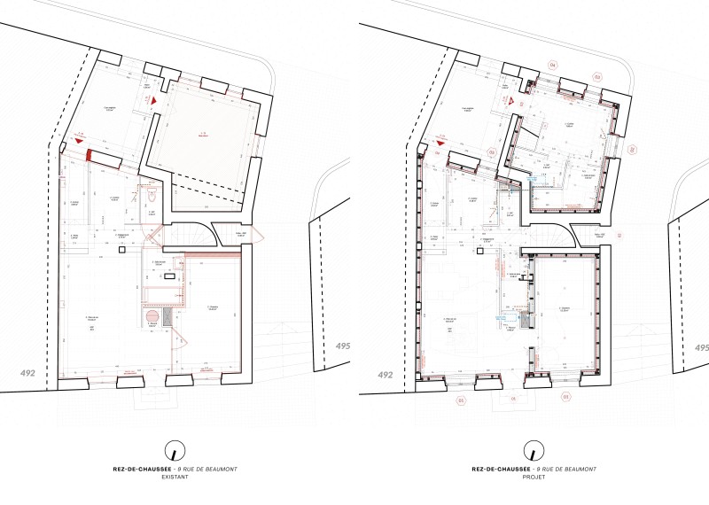
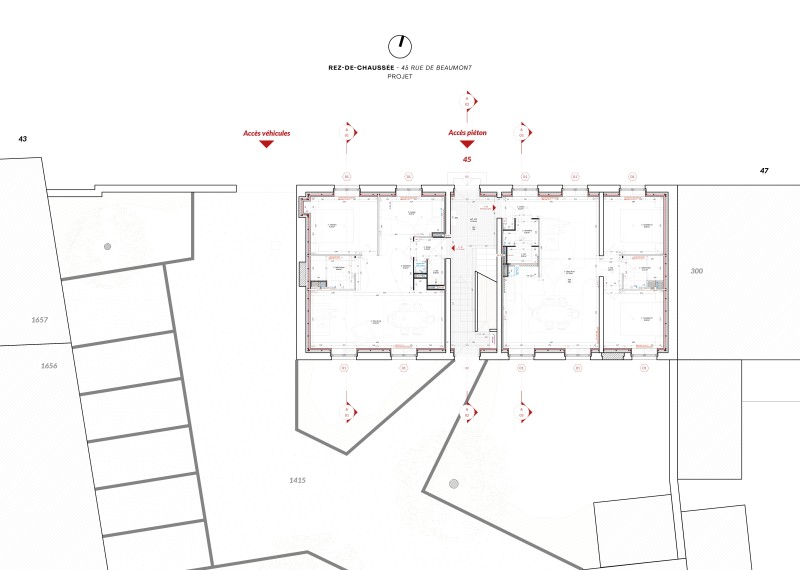
Le tissu du bourg de Solre-le-Château témoigne d’une implantation ancienne, vernaculaire et consolidée sur un territoire avec une disponibilité aisée en eau du territoire agricole. Les bâtisses sont agglutinées sur les trames viaires tandis que les immeubles du cœur de bourg prennent pour l’essentiel la forme de petits immeubles de rapport à un ou deux étages implantées en limite d’emprise publique, à faîtage parallèle. Des bâtisses modestes, à l’instar de leurs éléments constructifs, qui témoignent d’un caractère et d’une mise en œuvre spécifique du territoire.

Un programme de rénovation énergétique très attendu

Ayant fait l’objet d’un bail emphytéotique puis d’une cession à l’euro symbolique, les deux immeubles sont soumis à des contraintes bien distinctes, mais à une égale attente quant à leur rénovation. Réhabilités sans grande sensibilité quarante ans auparavant, les deux immeubles présentent des pathologies et désordres dont un relevé technique exhaustif mené par la maîtrise d’œuvre a révélé l’importance.

Chaque habitant a été rencontré, et écouté. Une approche pédagogique et humaine a permis d’identifier dans chaque immeuble les profils nécessitant un accompagnement social resserré au cours du chantier en site occupé.

Une approche efficiente et discrète

Une rénovation globale est projetée par le maître d’ouvrage, en site occupé car peu de vacances existent. Compte tenu de l’environnement patrimonial des immeubles, l’enjeu du projet tient bien plus dans l’efficience et l’élégance des solutions techniques que dans un geste architectural exubérant et bavard.

La conception, bien consciente de ces enjeux, propose des ouvrages précis et des restructurations ciblées valorisant le savoir-faire local : brique et pierre d’Avesnes de réemploi, matériaux biosourcés et campagne de reprise d’étanchéité à l’air pour parvenir à un niveau BBC Rénovation.

A chaque étape du développement du projet, les habitants ont été consultés et impliqués au côté du maître d’ouvrage.

  • MOA

    Partenord Habitat

  • MOE

    HPAA - Architecte mandataire
    Arvalhome - BE CVC-Fluides
    BATECA Ingénierie - BE STR
    Atlas Energies - BE THE-ENV

  • Programme

    Rénovation énergétique
    10 logements - 1T1 - 4T2 - 4T3 - 1T4
    531.45 m²SHAB

  • Enveloppe

    852000 €HT

  • Phase

    PRO-DCE - 2026