L01 - Coeur d’îlot réinvesti - HIRSON (02)

Réhabilitation d’un ensemble bâti industriel et transformation en logements
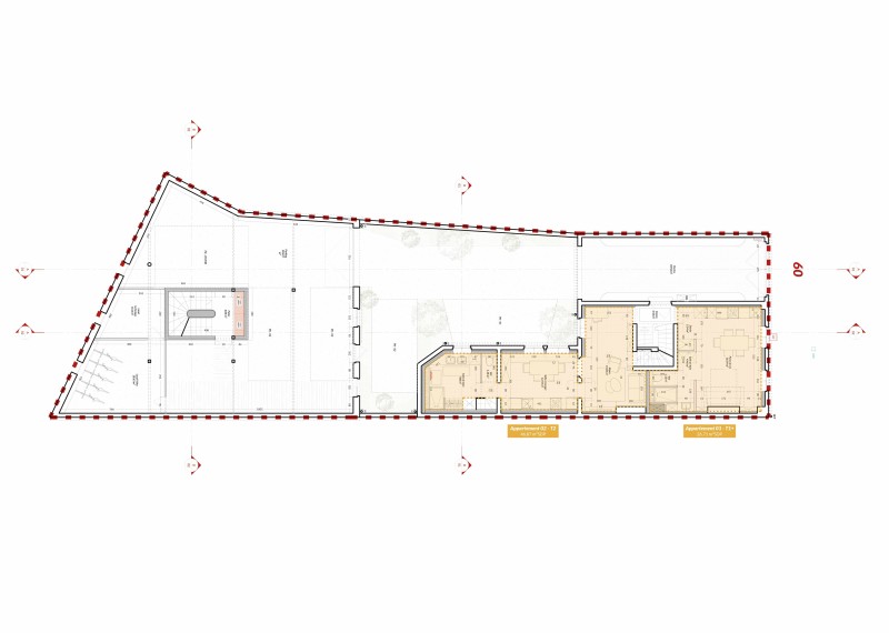
60 rue Charles de Gaulle - 02500 Hirson

  • MOA

    Privé

  • MOE

    HPAA - Architecte mandataire

  • Programme

    11 logements - du T1 au T3
    496 m²SDP - 460 m²SHAB

  • Enveloppe

    700000 €TTC

  • Phase

    AVP-DP - 2024

Sur une rue passante et dense de la commune, un immeuble modeste et dégradé s’ouvre sur une petite cour, que surplombe un ancien atelier de menuiserie. Paraît-il qu’on y fabriquait des cercueils, aujourd’hui ne reste qu’un imposant volume capable et vacant, dans lequel le maître d’ouvrage souhaite déployer un programme dense de logement.

La bâtisse est bien construite, et contrairement à l’immeuble en front à rue maintes fois rénové et transformé, elle est relativement intègre. De grands plateaux solivés reposent sur une trame poteaux-poutres légère mais stable. Les modes constructifs employés restent cohérents avec la période et le territoire, et les traceurs de l’Avesnois sont bien présents.

Le projet ne prévoyant pas d’extension ou de ravalement d’ensemble, l’enjeu pour l’atelier était d’ordre purement fonctionnel : concilier un programme gourmand avec le potentiel du site, et ne pas obérer son évolution vers des programmes futurs et l’atteinte d’objectifs environnementaux cohérents avec le cadre réglementaire.

Des aménités et un peu de sensibilité

Malgré la qualité relative de sa conception d’origine, l’immeuble sur rue s’est révélé relativement adapté à une division en plusieurs appartements de taille modeste. La spatialisation reste simple et efficace : les aménités d’usage sont recherchées dans quelques ouvrages de menuiserie intérieure fluidifiant nettement le plan.

A l’inverse, l’immeuble en fond de cour, mono-orienté, serait plus adapté à une programmation de lofts en plan libre. Cette option est refusée par le maître d’ouvrage, qui y préférera la négociation avec le voisin en vue d’obtenir des servitudes de vue pour les logements de l’étage, afin de rentrer deux logements de plus au chausse-pied.

Ce projet constitue le cas d’école d’échanges tendus et difficiles avec une maîtrise d’ouvrage sourde à nos alertes et recommandations, et d’un effort constant de la part de l’atelier pour tâcher de maintenir l’intégrité d’un projet. Nous n’en sommes pas fiers, mais la lutte a été digne et la qualité de notre accompagnement maintenue.

  • MOA

    Privé

  • MOE

    HPAA - Architecte mandataire

  • Programme

    11 logements - du T1 au T3
    496 m²SDP - 460 m²SHAB

  • Enveloppe

    700000 €TTC

  • Phase

    AVP-DP - 2024